Mehr anzeigen zum Thema Beschreibung
Beschreibung
Neue, moderne Bürofläche mit ca. 215 qm, Ausbau erfolgt in Absprache mit dem Mieter.
Neue Lagerhalle (Fertigstellung 2023) mit ca. 1730 qm Fläche und 10 Metern Höhe kann optional mit angemietet werden (nicht in der angegebenen Miete für das Büro enthalten).
Neue Lagerhalle (Fertigstellung 2023) mit ca. 1730 qm Fläche und 10 Metern Höhe kann optional mit angemietet werden (nicht in der angegebenen Miete für das Büro enthalten).
Mehr anzeigen zum Thema Ausstattung
Ausstattung
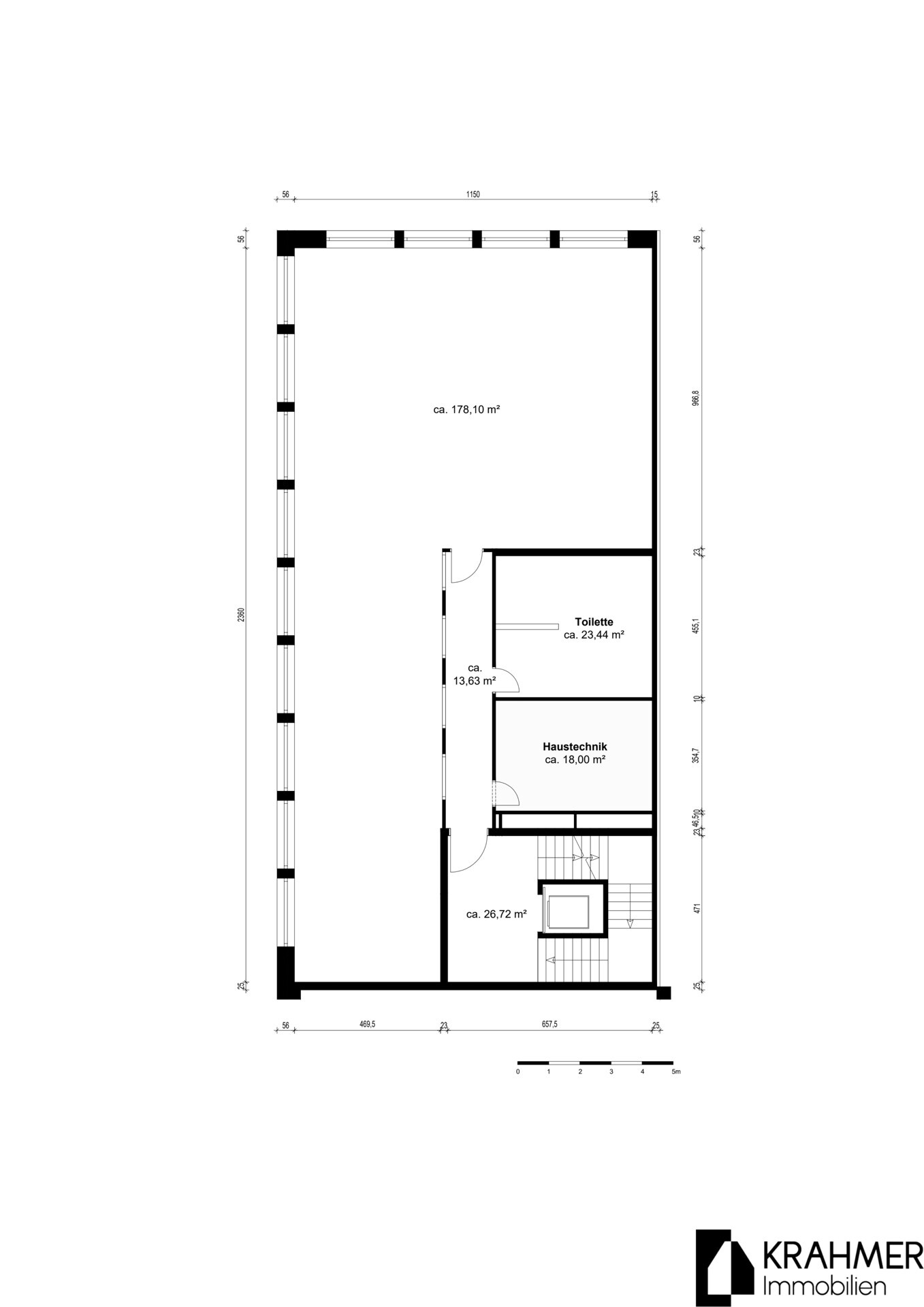
Bürofläche:
- Erstvermietung/Neubau
- ca. 215 qm
- Monatliche Kaltmiete: 2.365,- € + Betriebskosten
- gute Energieeffizienz
- 2. Etage (aktuell ohne Aufzug - kann nachgerüstet werden)
- veredelter Rohbau
- Innenausbau erfolgt in Absprache mit dem Vermieter
- Anschlüsse für Toiletten und Küche vorhanden
- Klimaanlage vorgesehen
- Fußbodenheizung
- elektrische Außen-Raffstores
Halle (optional mit anmietbar, nicht im Mietpreis für das Büro enthalten):
- Erstvermietung Neubau
- Halle/Lager: ca. 1.730 qm
- Monatliche Kaltmiete: 10.726,- € + Betriebskosten
- Hallenhöhe: 10 m bis zum unteren Träger (Gesamthöhe: 11,85 m)
- gute Energieeffizienz
- ebenerdige Andienung
- Umgebung: Gewerbliche Baufläche
- Brandmeldeanlage mit Deckensprinklerung
- Rolltor: 5 x 5 m, elektrisch
- Option zum Einbau eines Hallenbüros sowie Toiletten/Umkleide (alle Anschlüsse vorhanden)
- Halle beheizbar
- Starkstromanschlüsse vorhanden
- Tageslicht + LED-Beleuchtung
Parkplätze (optional anmietbar):
- 5 Außenstellplätze a 15 € monatlich
Mieterspezifische Wünsche können beim Ausbau berücksichtigt werden.
- Erstvermietung/Neubau
- ca. 215 qm
- Monatliche Kaltmiete: 2.365,- € + Betriebskosten
- gute Energieeffizienz
- 2. Etage (aktuell ohne Aufzug - kann nachgerüstet werden)
- veredelter Rohbau
- Innenausbau erfolgt in Absprache mit dem Vermieter
- Anschlüsse für Toiletten und Küche vorhanden
- Klimaanlage vorgesehen
- Fußbodenheizung
- elektrische Außen-Raffstores
Halle (optional mit anmietbar, nicht im Mietpreis für das Büro enthalten):
- Erstvermietung Neubau
- Halle/Lager: ca. 1.730 qm
- Monatliche Kaltmiete: 10.726,- € + Betriebskosten
- Hallenhöhe: 10 m bis zum unteren Träger (Gesamthöhe: 11,85 m)
- gute Energieeffizienz
- ebenerdige Andienung
- Umgebung: Gewerbliche Baufläche
- Brandmeldeanlage mit Deckensprinklerung
- Rolltor: 5 x 5 m, elektrisch
- Option zum Einbau eines Hallenbüros sowie Toiletten/Umkleide (alle Anschlüsse vorhanden)
- Halle beheizbar
- Starkstromanschlüsse vorhanden
- Tageslicht + LED-Beleuchtung
Parkplätze (optional anmietbar):
- 5 Außenstellplätze a 15 € monatlich
Mieterspezifische Wünsche können beim Ausbau berücksichtigt werden.
Mehr anzeigen zum Thema Lage
Lage
Die Bürofläche und die Halle befinden sich in einem Gewerbegebiet in Ratingen-Tiefbroich. Durch die gute Anbindung an die umliegenden Autobahnen A52, A44 sowie A3 erreichen Sie die Großräume Düsseldorf, Köln sowie das Ruhrgebiet optimal.
Es handelt sich bei dem Gebiet um gewerbliche Baufläche (G).
Es handelt sich bei dem Gebiet um gewerbliche Baufläche (G).
Mehr anzeigen zum Thema Sonstige Angaben
Sonstige Angaben
Sie sind neugierig geworden und möchten weitere Informationen zum Objekt erhalten oder einen Besichtigungstermin vereinbaren: Nehmen Sie gerne Kontakt mit uns auf.
Und übrigens: Vielleicht möchten Sie eine Immobilie verkaufen oder vermieten? Auch für eine kostenfreie und unverbindliche Marktwertermittlung stehen wir gerne zur Verfügung.
Und übrigens: Vielleicht möchten Sie eine Immobilie verkaufen oder vermieten? Auch für eine kostenfreie und unverbindliche Marktwertermittlung stehen wir gerne zur Verfügung.
Mehr anzeigen zum Thema Sonstige Angaben
Energieausweis
- Nutzungsart
- Gewerbe
- Baujahr lt. Energieausweis
- 2023
- Endenergiebedarf
- 82,73 kWh/(m²a)
- Endenergiebedarf (Strom)
- 9 kWh/(m²a)
- Endenergiebedarf (Wärme)
- 58 kWh/(m²a)
- Energieausweis
- Bedarfsausweis
- Energieausweis gültig bis
- 18.07.2033
- wesentlicher Energieträger
- Gas
Ihr Ansprechpartner
Herr Janusch Krahmer
Krahmer Immobilien
- Tel.:
- +49 2150 709 12 24
- E-Mail:
- info@krahmer.immo
Hauptstraße 92
40668 Meerbusch















